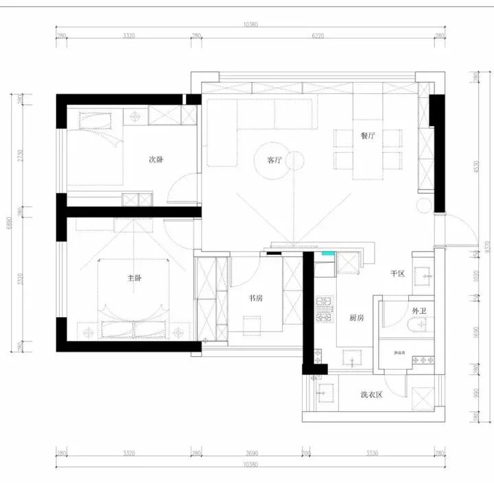
这套84平米的小房子,客餐厅是横厅格局,在较小的面积基础下,在布局时候把沙发靠窗摆放,为整个客餐厅空间腾出了宽松舒适的氛围,整个空间都显得格外的宽敞大方。



进门位置并没有独立的玄关,一开门就看着电视墙的侧边还装了个抽屉,上方摆一张菠萝装饰画,在文化墙的搭配下,显得格外的优雅文艺。


电视墙以白色文化砖打造,结合上方的鹿头与原木电视柜,整体简洁又文艺大方。

在电视墙右侧的木饰隐形门造型,显得格外的自然大方。

沙发墙靠在窗边这一侧,灰色的布艺沙发、2张黄绿小圆形茶几,结合窗帘的衬托,显得自然又舒适。


客餐厅是横厅格局,沙发旁边就是摆着餐桌椅,黑白简约的搭配显得格外的自然时尚。

简约时尚的餐桌椅,与整体空间搭配起来很是和谐的视觉感。

餐厅背景墙被装成书架收纳,摆上书籍后充满了文艺的美感。

餐台上的物品多而杂,在精致文艺的搭配下,却并不显得乱。


卧室的床头背景墙以孔雀绿刷新,结合原木床、植物挂画、简约舒适的床单,搭配出了清新与活力的氛围,让整个卧室都显得自然又充满生机。

床头柜的小绿植,与床头灯搭配起来相当的和谐精致,同时咖色与格纹的窗帘,也增添了空间的简约感。


次卧把床靠窗摆放,在卧室休息时就能远眺深山与蓝天,床头背景墙以木纹图案地板打造,床头的墙突出部分装成一道摆台,摆上装饰画也是清新又惬意。

独特的木纹,让整个空间都充满了文艺的气息。



书房墙面装了一块软木板,贴上照片记录着去往各地的点点滴滴,充满爱意。


洗手盆采用较为高档的台上盆,搭配一个黑框园镜,在波浪纹的墙砖搭配,显得文艺又简约大气。

洗手盆右侧装了个搁板,挂毛巾与摆放卫浴用品,还摆了一盆绿植,搭配小块黑砖,满满的文艺与清新气息。

北京中美环艺装饰有限责任公司是一家集装饰设计、工程施工、材料配送、木门、地板、家具、装饰品开发为一体的装饰企业。主要从事办公、商业、酒店、学校、医院、公寓、别墅、住宅等场所的装修设计和施工。公司经北京市工商管理局正式批准注册、北京市建委、规划委员会审核认定,已取得国家正规施工和设计资质,为中国建筑装饰协会、北京市装饰协会、中国室内装饰协会的会员单位。
本资料来源于网络仅供学习研究之用,不得用作商业用途。
我们尊重原创设计工作者,设计作品版权归原作者及公司所有。
给我一把钥匙 还您一个健康的家
好设计,好装修
就找 中美环艺装饰
中美环艺官方微信号:zmhyzs
装修QQ咨询:583926183
装修我帮您:13911911945
投诉