项目地点:新疆乌鲁木齐
建筑面积:800㎡
主要材料:黑金沙大理石、水泥板、水泥砖、白色壁布、稻草漆等
设计公司:叙品设计
主案设计:蒋国兴

设计师以禅的风韵来诠释室内设计,不求华丽,旨在体现人与自然的沟通,为现代人营造一片灵魂的栖息之地。整个空间以素色为主调,质朴的水泥板与水泥砖厚实而流畅,仿佛划过时间的痕迹,为整个空间带来一种大气磅礴的气势,以一种独特的姿态诠释着中式之美。

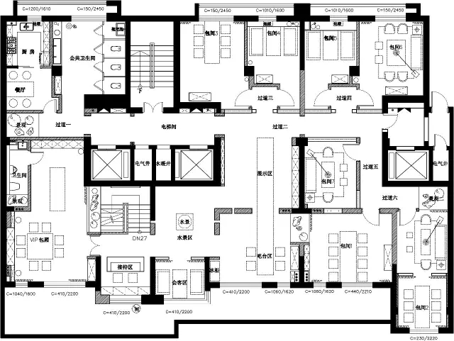
在平面布置上,一楼规划了门厅、景观区,二楼规划了接待区、包间、厨房、餐厅、卫生间等。在色彩运用上,以黑色、白色、木本色为主色调,灰色为辅色调,再搭配一些花饰、器皿,让整个空间与茶道精神合而为一的同时又展现空间的全部功能和意境。




一楼的门厅规划了一个半通透的装饰柜,黑色哑光方管和实木层板组合而成,后置钢化玻璃,隐隐约约,使室内空间与室外空间有一个视觉上的交流。素色的水泥板墙面、素色的水泥板栏杆、黑色的花岗岩踏步在灯光的照射下愈发显得宁静、质朴。墙面的白色投影搭配一些小树枝装饰,还有旁边的白色枯木、石头装饰,禅的意境便油然而生,浑然天成。


二楼的接待台没有复杂的造型,黑色石材的台面,黑色的木作线条装饰着正立面,在灯光的照射下,透过磨砂玻璃,散发出淡淡的黄光。在会客区,设计师运用中国古典元素,特意设计了一个八角形的门框,意味着人生的八面玲珑。


吧台区和展示区延续了这种元素,一条长长的桌子穿过八角门洞而立,桌面上摆放着大小不一的装饰陶罐,桌子下面随意的放着几只蜡烛,增添了空间的氛围。桌面上悬挂着一排黑色线条组成的面灯,即实用又满足了装饰的需求。红色的中式高柜给素色的空间增添了一些活力。枯山水的文化在这里得到了很好的应用,白色枯木、石头在灯光的照射下愈发显得精致。




包间没有复杂的造型,以素色为主。米色的稻草漆、白色的壁布墙面,搭配装饰扁、黑白挂画、白色的枯枝等装饰品,有的包间还设计了一个八角的门框,使中式的韵味更为突出。在VIP包间还规划了一处景观的意境,使空间更具有情调。

一层布局图

二层布局图
项目地点:新疆乌鲁木齐
建筑面积:270㎡
主要材料:土砖,竹子,红瓦片,做旧实木板,木拼条,竹编灯
设计公司:叙品设计
主案设计:蒋国兴

俗话说,一茶一人生。
从“叙品茶事”四个字可以读出其中的含义——
叙:讲述,叙旧。
品:品味,琢磨。
茶:煮茶,吃茶。
事:一些感慨经历,人生百事。
只看这四个字,已经感受到了一些关于茶的情怀。

一个用以细品慢用,享受时光的空间,自然需要原汁原味的设计。而纯天然的材料,如竹,瓦,土则构成了本案主要的材料。而色调则是旧旧的黄和暗暗的红。

入门即是一道长长的竹林景观,古人云:“宁可食无肉,不可居无竹”,竹,是最能体现文人环境的植物。细细的枯竹构成一道竹林,而背打的灯光则透过竹林散发到地面,细细地看,竟是一片片精密拼装的红瓦。犹如古人的居所。
屋顶也是沿用与地面同质的红瓦,紧密排列,上呼下应。
过道的尽头是接待台。粗犷的山石,顶上一条竹扁吊灯,别有一番意味,有趣又实用。通往洗手间的过道,地上几个竹编的装饰灯,圆乎乎,憨态可掬。灯光则透过竹编缝隙映射在墙上,地上,暖暖的。


洗手间,红色古砖,原木色洗手台,边上一棵白色的枯木,跟镜前的小吊灯组成了一副古诗里的场景。卫生间过道。则用的是宽窄不一的原木板,包括隐藏在墙里的那道门。包间门旁的小壁灯则用瓦片做成,别致而独特。




包间墙也的也是是土砖,旧旧的黄。粗竹为梁,细竹列墙,而柜子和茶桌则恢复旧的木本色。几盏精致的茶具摆放在桌台上,似乎向客人在诉说着茶的往事。

另一走道用一高黑条方管和红瓦组成的隔断,将过道隔成两条,包间门则依然采用用旧木板,门板上方一块长长的门楣,如同小时奶奶家的大门。

走道的尽头是水景,黑色的水底里露出几块尖尖的石头,水景的上方是竹编装饰灯,而背后的一面镜子让竹编灯层层地反射,让空间越发显得幽深。

一盏香茶,一莲竹林,哪怕置身闹市,车水马龙,一样可以如水心静。游离于万物之外,浸润于茶香之中,"大隐隐于市”、“深隐隐于茶”,人生,不应如此安静么?
(来源:中装协设计网,作品由叙品设计供稿,版权归原著所有,转载请注明出处)
给我一把钥匙 还您一个健康的家
好设计,好装修
就找 中美环艺装饰
中美环艺官方微信号:zmhyzs
装修QQ咨询:583926183
装修我帮您:13911911945
公司地址:北京通州区梨园镇梨园城铁贵友大厦1807室