公司简介     

“城市牧场”的自然原味

原 牛 道 福 田 店

牧场,不仅仅是“风吹草低见牛羊”的美丽风景,更代表着“诗和远方”般的自由生活。久居城市的人对自然的疏远和隔离,在原牛道福田店将会消失于无形。中绘社在前门入口处营造灌木丛和地被景观,黑白花奶牛散布其间,已让一股安静、怡然的感觉扑面而来。开放式橱窗展示新鲜的牛肉与切肉师傅的娴熟刀法,更撩动想要大快朵颐的满腹食欲。

▲ 餐 厅 外 展 示 面

追随淡淡的肉香踏进用餐空间,目光所及处皆诠释了“城市牧场”的设计主题。红砖、木材、花岗岩等材料的综合运用,塑造了英国工业革命时代鼎盛时期的街景风格。齿轮壁挂、原木铁架、老式留声机以及各种欧式摆件,赋予了空间复古典雅之中又夹带帅气工业风的时代气息。空间依据不同功能和情景进行切割。

▲ 收 银 区

接待收银区背景的灵感来源于工业时期的机械打字机。

▲ 前 厅 角 度

卡通小汽车成了客人最喜欢的拍照区。

▲ 用 餐 区

▲ 用 餐 A 区

▲ 用 餐 C 区

▲ 用 餐 靠 窗 区

▲ 调 料 区

▲ 用 餐 区 隔 墙

▲ 厢 房 走 廊

▲ 火 车 厢 房

▲场 景 摆 设

▲ 包 厢

有仿英伦火车车厢用餐区及英伦邮局的圆形包厢。

▲ VIP 包 厢

▲VIP 包 厢

俏皮的主题挂画与金属吊灯,搭配皮革柳钉的家具及仿真绿植,将古朴的牧场元素全盘托出,凸显自然原始、怀旧情怀的空间氛围。还设置有开会与聚餐相结合的VIP包厢,在区域与区域间重叠错落,韵味不尽。

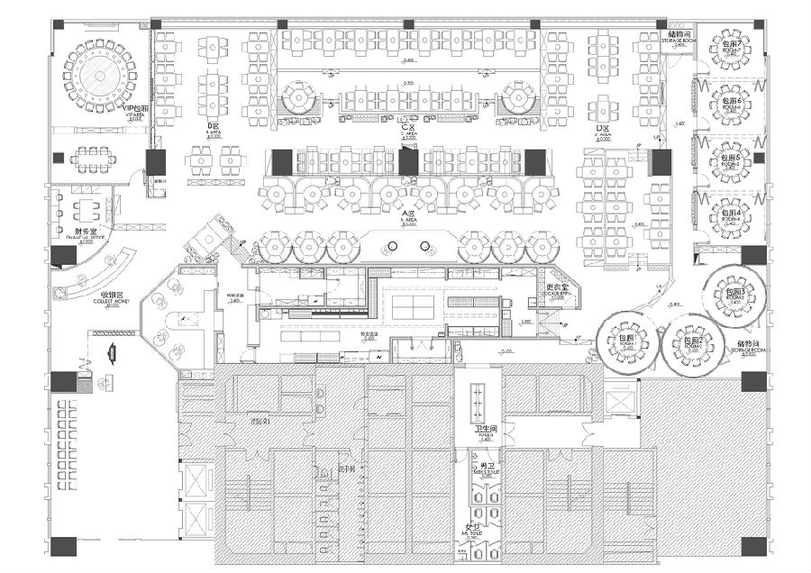
原牛道牛肉火锅平面图

 

设计单位:中绘社设计事务所   设计师:许思敏、林佳、梁恩、曹苑    项目面积:1700㎡完工时间:2016年10月项目地点:深圳市福田区现代国际大厦摄影师:范文耀

 

 


    给我一把钥匙  还您一个健康的家

 

好设计,好装修


就找 中美环艺装饰

 

中美环艺官方微信号:zmhyzs

装修QQ咨询:583926183

装修我帮您:13911911945


北京市通州区云景东里363号楼商-22/23号 热线电话:010-81576748 中美环艺装饰欢迎您的来电!
网站备案编号:京ICP备13004004号-1